Espace propriétaire
fr

Votre recherche

Flayosc (83780)

7 pièces - 220 m²

EXCLUSIVITE FLAYOSC VILLA A TERMINER 220M² 6 CHAMBRES SUR TERRAIN DE 4000M² AVEC PISCINE

450 000 €
Ref : 3986
A propos de ce bien

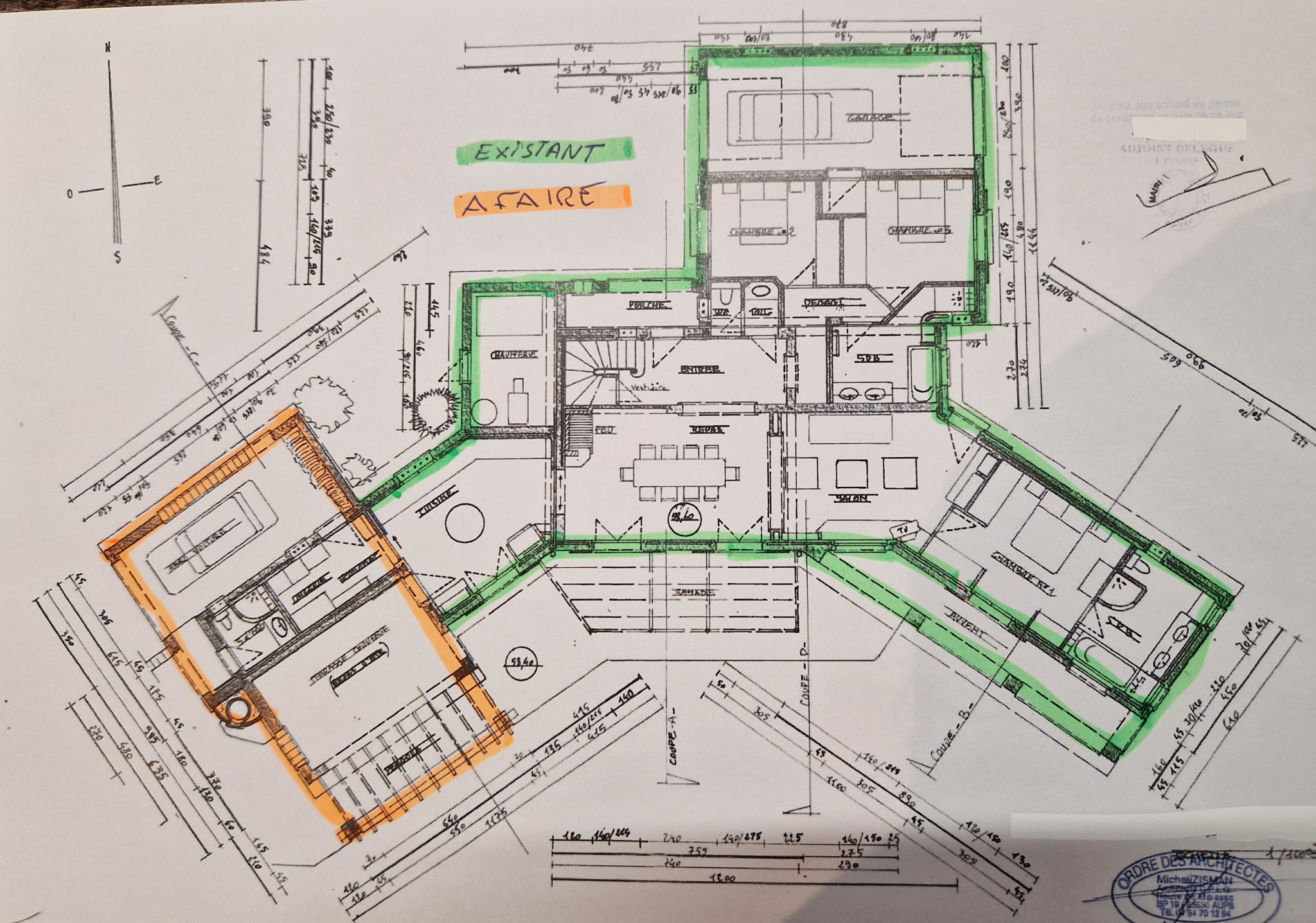
EN EXCLUSIVITE SOGIP. A TERMINER Belle villa traditionnelle de plus de 220m² avec ses 6 chambres sur un terrain de 4000m² avec piscine.

Vous êtes motivé, capable d'assumer des travaux, profitez de cette opportunité ! Un bien avec un énorme potentiel dans un environnement de qualité...

Des années 2000, cette villa aux vastes volumes est composée de :

Au rez-de-chaussée : partie entièrement à terminer avec : dégagement wc, espace de Vie de 50m² avec cheminée donnant sur la piscine, cuisine 20m², chambre parentale avec salle d’eau. Partie habitable de 2 chambres dont une avec salle d’eau, salle de bain… et dans l’ancien garage séjour/cuisine de 28m² avec mezzanine. Et à l’étage sous les combles une chambre mansardée de 15m² avec salle d'eau à terminer également.

A l'étage : 2 chambres de 13m² avec une salle d'eau et wc.

Pour les travaux à réaliser : enduits et peintures intérieurs, carrelages, cuisine et sanitaires à équiper, système de chauffage à installer, electricité à finaliser etc… et la partie cuisine d’été poolhouse à créer en totalité (fondations faites).

Superbe terrain de 4000m² avec piscine traditionnelle 10*5, et abris de jardin.

Très belle vue dégagée et dominante plein sud, quartier calme et résidentiel.

Très beau potentiel d’aménagement, une très belle affaire à saisir sur FLAYOSC.

SOGIP, l'agence historique du village depuis plus de 40 ans, Caroline et Bruno à votre écoute

Descriptif de ce bien
Général
Code postal 83780
surface terrain 4 000 m²
Nombre de chambre(s) 5
Nombre de pièces 7
Nombre de niveaux 1
Vue Dégagée,Collines,Campagne
Détails
Nb de salle de bains 2
Nb de salle d'eau 3
Terrasse OUI
Exposition Sud
Année de construction 1999
Terrain arboré OUI
Financier
Prix de vente 450 000 €
Les honoraires d'agence seront intégralement à la charge du vendeur  
Energie
DPE GES
Copropriété
Copropriété NON
Contacter pour ce bien
L'agence
Téléphone 04 94 70 48 43
Adresse
19 boulevard Jean Moulin 83780 Flayosc

* Champ obligatoire

Les informations recueillies sur ce formulaire sont enregistrées dans un fichier informatisé par La Boite Immo agissant comme Sous-traitant du traitement pour la gestion de la clientèle/prospects de l'Agence / du Réseau qui reste Responsable du Traitement de vos Données personnelles. La base légale du traitement repose sur l'intérêt légitime de l'Agence / du Réseau. Elles sont conservées jusqu'à demande de suppression et sont destinées à l'Agence / au Réseau. Conformément à la loi « informatique et libertés », vous disposez des droits d’accès, de rectification, d’effacement, d’opposition, de limitation et de portabilité de vos données. Vous pouvez retirer votre consentement à tout moment en contactant directement l’Agence / Le Réseau. Consultez le site https://cnil.fr/fr pour plus d’informations sur vos droits. Si vous estimez, après avoir contacté l'Agence / le Réseau, que vos droits « Informatique et Libertés » ne sont pas respectés, vous pouvez adresser une réclamation à la CNIL. Nous vous informons de l’existence de la liste d'opposition au démarchage téléphonique « Bloctel », sur laquelle vous pouvez vous inscrire ici : https://www.bloctel.gouv.fr Dans le cadre de la protection des Données personnelles, nous vous invitons à ne pas inscrire de Données sensibles dans le champ de saisie libre.
Ce site est protégé par reCAPTCHA, les Politiques de Confidentialité et les Conditions d'Utilisation de Google s'appliquent.

Découvrir nos outils